2024-11
21
山东赛锐特公司赴广东省医疗器械质量监督检验所提供专业服务
近日,山东赛锐特公司派遣专业团队前往广东省医疗器械质量监督检验所,为其提供的多款高端测试仪器进行售后维护和技术支持。此次售后的仪器包括输卵管导管头端抗弯曲性能测试仪、呼吸过滤器评价过滤性能盐性测试仪以及输尿管性能测试仪,这些设备在医疗器械的质量监督与检测中发挥着至关重要的作用。 输卵管导管···
查看详细 +
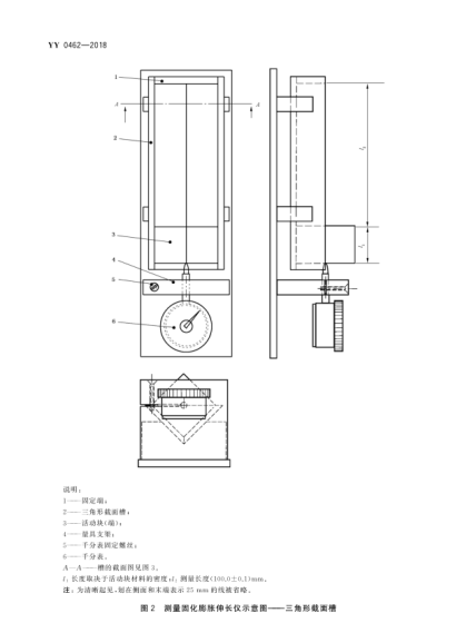
牙科学石膏产品线固化膨胀伸长仪-三角形截面槽
符合标准:
YY/T0462-2018
技术参数:
(1)三角形截面槽,见图2,图3,图4.由耐腐蚀的金属材料制成(如铝、不锈钢或黄铜合金),能形成长(100.0±0.1)mm的试样。仪器与测量装置固定,使之能测定0.01mm的长度变化,并对试样施加不大于0.8N的测试力。样本槽的内截面应为一等腰三角形,两内截面边长(30±1)mm,夹角为90°槽的一端为封闭固定的,另一端为一可移动的质量为(200±10)g的活动块。在槽的内表面划出一条水平线,使三角形的边长为(25±1)mm。



